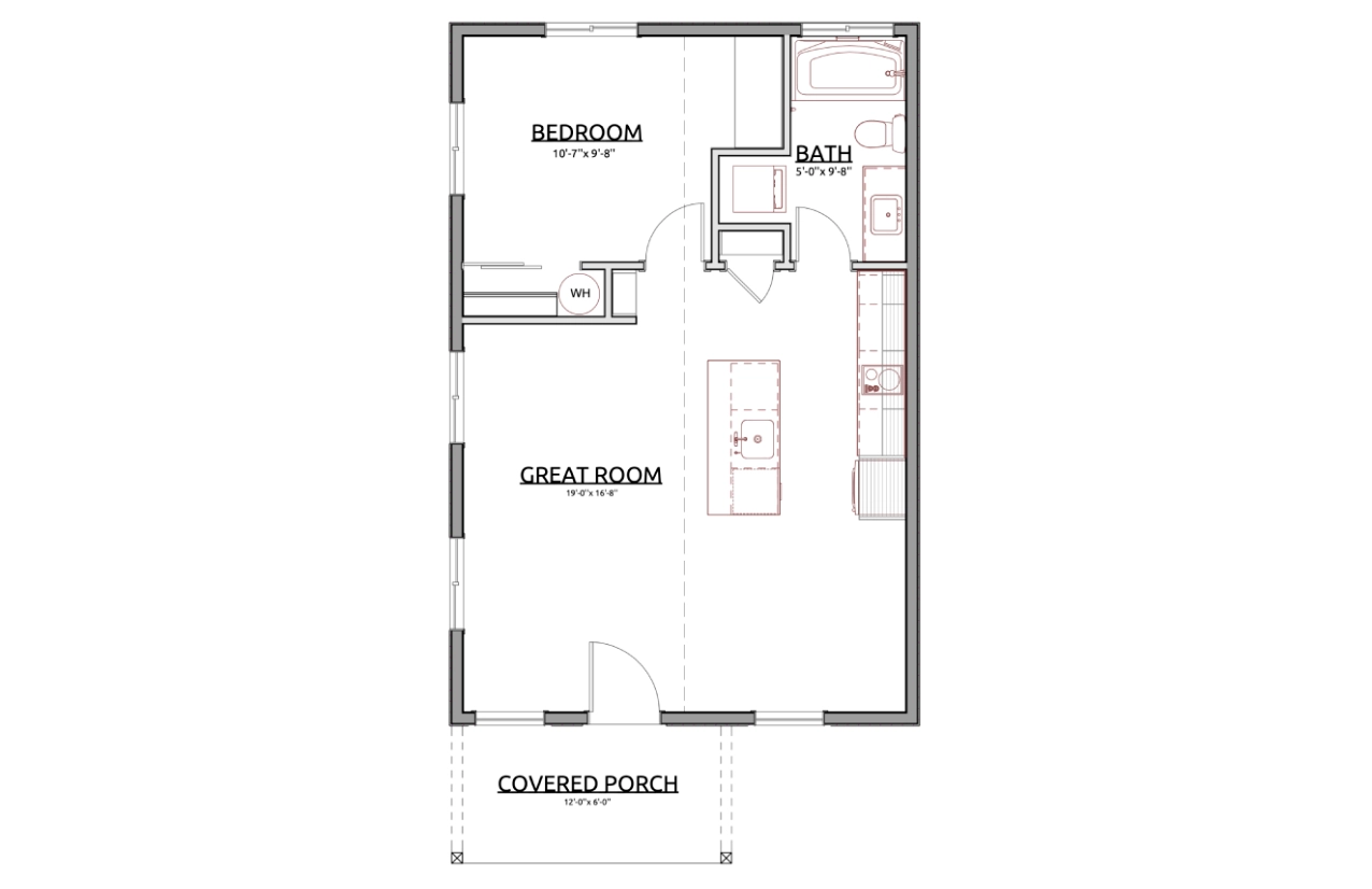
Rendering
Floor Plan

Chinook

Designed with single-level living in mind, this 3-bedroom, 2-bath ADU offers all the comforts of a full-size home in just 988 square feet.
Rendering
Floor Plan

Walla Walla

Modern two-story home under 1,000 sq ft with two private bedroom suites and open-concept living. Ideal for roommates or small families.
Rendering
Floor Plan

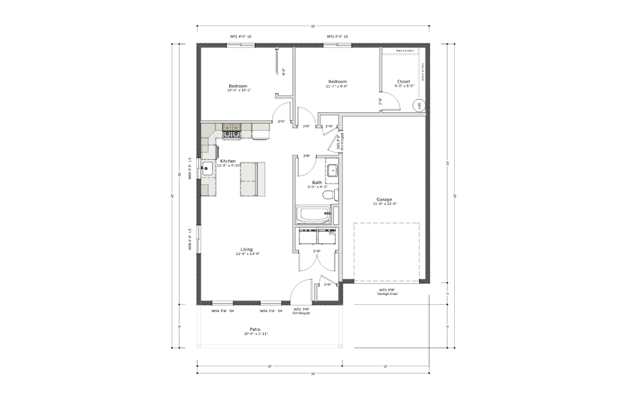
Cascade

This two-bedroom home features an attached garage, spacious kitchen, and welcoming front patio. Ideal for couples or small families.
Rendering
Floor Plan

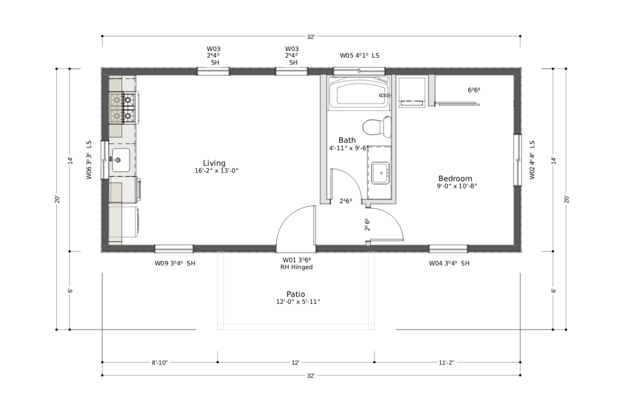
Mt. Rainier

Mt. Rainier features two large bedrooms, vaulted ceilings, and open-concept living in a compact, flexible design.
Rendering
Floor Plan

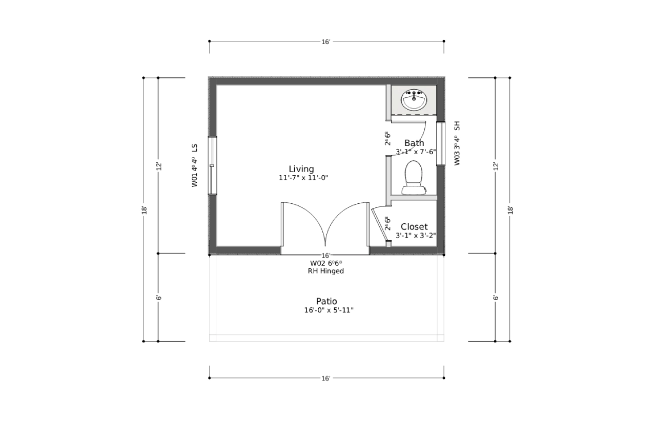
Pacific

A wheelchair-friendly home with a barrier-free open layout, wide doorways, and fully accessible living. Designed for comfort and ease.
Rendering
Floor Plan

Silver Star

A 745 sq ft two-bedroom, two-bath ADU adding value and flexibility to your property. Ideal for guests or rentals.
Rendering
Floor Plan

St. Helens

The St. Helens model ADU packs a lot into a small footprint, perfect for smaller lots needing maximum space.
Rendering
Floor Plan

Twin Falls

The Twin Falls model features two ADUs in one building, offering strong ROI and flexible rental potential. Ideal for long or short-term rentals.
Rendering
Floor Plan

Multnomah

The Multnomah model ADU boasts a spacious 600sf that includes plenty of living space to host your friends and family.
Rendering
Floor Plan

Columbia

The Columbia model features a full-size kitchen, flexible living space, and a bonus room in under 600 sq ft.
Rendering
Floor Plan

Mt. Adams

Evergreen-based design with a single-car garage, flexible storage space, and open living that feels larger than its footprint.
Rendering
Floor Plan

Evergreen

The Evergreen model ADU offers 190 sq. ft. of smart living with a loft, large bedroom, full-size appliances, and a spacious bathroom.
Rendering
Floor Plan

Olympic

The Olympic ADU is a flexible 20’×26’ design with optional garage/storage and vaulted ceilings in this 1 bed, 1 bath unit.
Rendering
Floor Plan

Lewis & Clark

The Lewis & Clark ADU packs a loft, bedroom, full-size appliances, and a spacious bathroom in under 450 sq. ft.
Rendering
Floor Plan

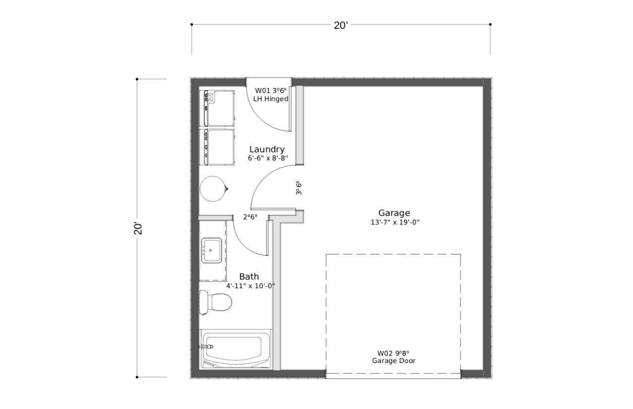
Detached Garage

This garage can be a stand-alone addition or an ADU add-on, with optional laundry and bathroom and flexible interior layout.
Rendering
Floor Plan

Mt. Hood

Our Mt. Hood model offers either a modern open floor plan or traditional one bedroom unit in 392 square feet of space.
Rendering
Floor Plan

Sockeye

The perfect compact solution for a backyard office, creative space, or guest suite! This 192 sq ft unit may be small, but it offers major

Property Eligibility Check

Every family’s situation is unique-our packages make it simple to get started.

  • Design + Permitting: Custom layouts, site plans, and approvals
  • Turnkey Build: Full construction, management, and delivery
  • Consulting Only: Expert advice for DIY or partner-led projects

What People Are Saying

Start Your Project

Check out our plans or reach out to schedule a model showing or site visit!

Accessory Dwelling Unit Property Eligibility

Fill out the form on this page and we will send you a comprehensive report on your zoning, lot size, setbacks, ADU options, and pricing.

My ADU was founded as an answer to a growing demand in 2019. After over 30 years in business building custom homes, we saw the opportunity to bring clarity to the updated Accessory Dwelling Unit laws locally.

This will close in 0 seconds