Mt. Rainier

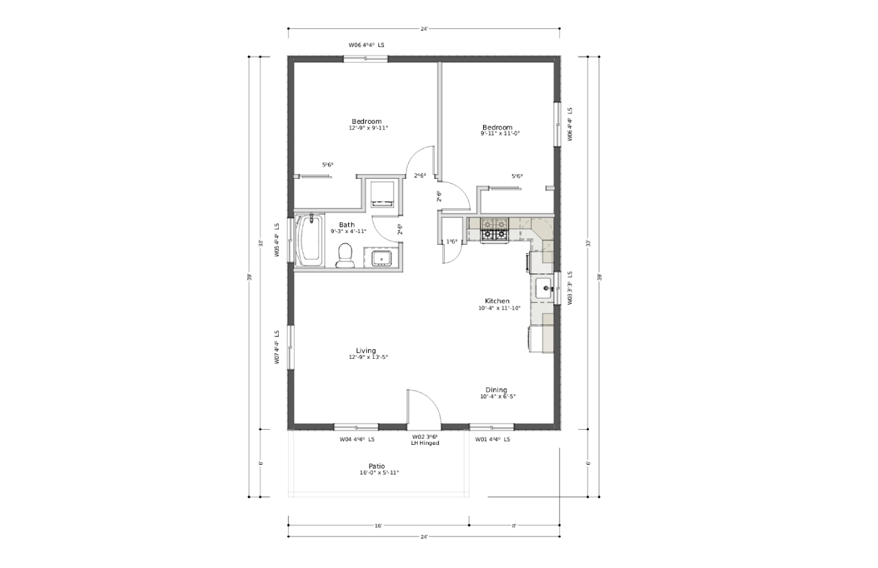
Mt. Rainier (792 sq. ft.)

With two large bedrooms and an open-concept great room, our Mt. Rainier model offers the same lifestyle as many homes twice the size! The 24 ft wide design allows it to fit on many different properties. Inside, the vaulted ceilings and large living area, combined with 2 bedrooms, makes this space perfect for a couple or small family to call home. My ADU was founded on the principles of bringing affordable housing and affordable investments to our community. With over 30 years in the building industry we’re happy to building for you.

Floor Plan

3D Space of Model

Standard Features of the Mt. Rainier Model

Gallery

Ready to Build Your Backyard Home?

Check out our plans or reach out to schedule a model showing or site visit!

Accessory Dwelling Unit Property Eligibility

Fill out the form on this page and we will send you a comprehensive report on your zoning, lot size, setbacks, ADU options, and pricing.

My ADU was founded as an answer to a growing demand in 2019. After over 30 years in business building custom homes, we saw the opportunity to bring clarity to the updated Accessory Dwelling Unit laws locally.

This will close in 0 seconds