Walla Walla

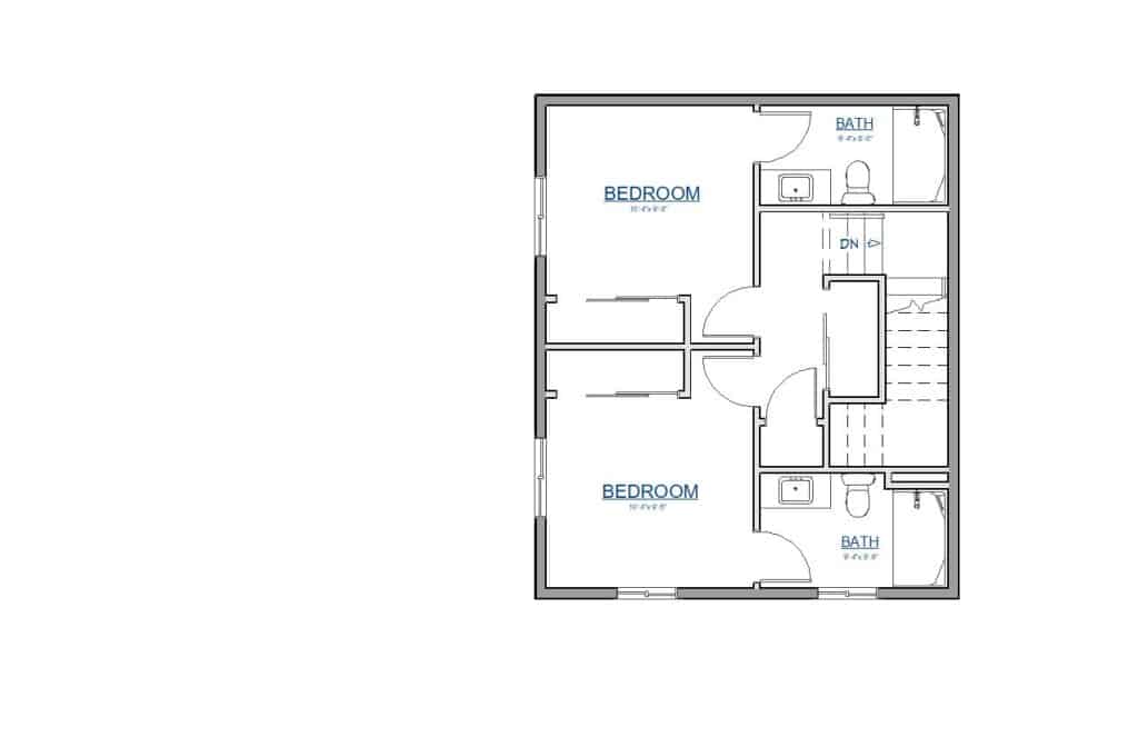
Walla Walla (986 sq. ft. Two-Story ADU – 2 Bed, 2.5 Bath)

A modern two-story design that delivers a big home living in under 1,000 square feet! With two private bedroom suites upstairs—each with its own full bath—and a half bath on the main level, this unit is perfect for roommates, guests, or small families. The open-concept main floor is great for entertaining or relaxing, while the compact footprint makes it suitable for tight lots or urban infill.

Floor Plan

Standard Features of the Walla Walla Model

Gallery

Ready to Build Your Backyard Home?

Check out our plans or reach out to schedule a model showing or site visit!

Accessory Dwelling Unit Property Eligibility

Fill out the form on this page and we will send you a comprehensive report on your zoning, lot size, setbacks, ADU options, and pricing.

My ADU was founded as an answer to a growing demand in 2019. After over 30 years in business building custom homes, we saw the opportunity to bring clarity to the updated Accessory Dwelling Unit laws locally.

This will close in 0 seconds